2403_ACCUEIL
sports centre and spaces for non-profits
- Location :
- Evere, Brussels
- Client :
- Commune of Evere
- Team :
- AgwA + VERS.A
- Subcontractors :
- JZH & Partners
- Planning :
- 2024
- Category :
- Ongoing
"The Place de l'Accueil is crossed by the Avenue Notre-Dame, which links Schaerbeek station to the Hôtel Communal d'Evere, and is dotted with special places and buildings. It crosses the Chaussée de Haecht, also a major thoroughfare. To design this public space and envisage a gentler layout, it is therefore important to understand that it is a space structured by these two axes, in addition to the secondary streets that border it. Rather than seeking a peripheral position, the new sports hall will take a more central position and truly inhabit the Place de l'Accueil.
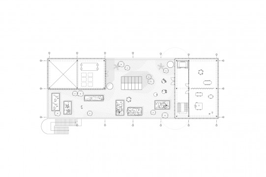
Because it is set back from the surrounding buildings, it radiates out onto the public spaces from all sides. This location avoids awkward facing neighbours and the creation of less inviting rear faces. Around the building, the public space is divided into specific atmospheres with on the south side of the building, a garden for the neighbourhood. Protected from traffic and intimate, this garden is bordered by the new facility, the school and local streets Deknoop and du Tilleul. The new garden gets plenty of sunshine throughout the day. It is quiet, ideal for a small play area, which will be created by recovering the play equipment recently installed on the site.
The building is generous in relation to its context: it establishes relationships with existing figures and programs, and helps to create new, high-quality outdoor spaces. The entrance hall plays a central role. It serves not only as a link between public spaces, but also between the different programs.
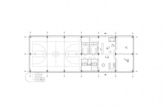
The six association rooms are stacked on the east side of the building. They are linked in pairs and connected to the central entrance hall by a clear circulation system. Their position at the head of the building enables them to establish multiple relationships with the surrounding neighborhood (with the Clair-Vivre school in particular).
The sports program is concentrated on the other side of the entrance hall. A central distribution area gives access to the washrooms and changing rooms before entering the large sports hall. Upstairs is the smaller room used, for example for yoga and martial arts. It is positioned here to accommodate a variety of groups in an inclusive way. The two gyms are visually linked. Like the entrance hall, the roof garden is a meeting place for all users and, by extension, the neighborhood and the city.
Today, the local authority needs a sports facility combined with multi-purpose spaces. The project proposes a modular structure made of prefabricated concrete columns and beams to accommodate these activities in the best possible way. This primary skeleton frees the spaces completely from constraining structural elements. It allows for the evolution of long-term programming. The secondary structures, made of wood for reasons of environmental impact and reversibility, contribute to the character of the site. The building can be easily imagined evolving over the long term."
Extracts from the competition proposal, 02.04.2024, AgwA + Vers.A
Collaborating team at AgwA
Benoit Burquel, Harold Fallon, Hélène Joos, Nicky Vancaudenberg, Benoit Vandenbulcke
Ali Ismail, Tristan Leduc, Julian Zhang, Isabella Ruggia, Lucas Verhaeghe, Léo Duyck
Because it is set back from the surrounding buildings, it radiates out onto the public spaces from all sides. This location avoids awkward facing neighbours and the creation of less inviting rear faces. Around the building, the public space is divided into specific atmospheres with on the south side of the building, a garden for the neighbourhood. Protected from traffic and intimate, this garden is bordered by the new facility, the school and local streets Deknoop and du Tilleul. The new garden gets plenty of sunshine throughout the day. It is quiet, ideal for a small play area, which will be created by recovering the play equipment recently installed on the site.
The building is generous in relation to its context: it establishes relationships with existing figures and programs, and helps to create new, high-quality outdoor spaces. The entrance hall plays a central role. It serves not only as a link between public spaces, but also between the different programs.
The six association rooms are stacked on the east side of the building. They are linked in pairs and connected to the central entrance hall by a clear circulation system. Their position at the head of the building enables them to establish multiple relationships with the surrounding neighborhood (with the Clair-Vivre school in particular).
The sports program is concentrated on the other side of the entrance hall. A central distribution area gives access to the washrooms and changing rooms before entering the large sports hall. Upstairs is the smaller room used, for example for yoga and martial arts. It is positioned here to accommodate a variety of groups in an inclusive way. The two gyms are visually linked. Like the entrance hall, the roof garden is a meeting place for all users and, by extension, the neighborhood and the city.
Today, the local authority needs a sports facility combined with multi-purpose spaces. The project proposes a modular structure made of prefabricated concrete columns and beams to accommodate these activities in the best possible way. This primary skeleton frees the spaces completely from constraining structural elements. It allows for the evolution of long-term programming. The secondary structures, made of wood for reasons of environmental impact and reversibility, contribute to the character of the site. The building can be easily imagined evolving over the long term."
Extracts from the competition proposal, 02.04.2024, AgwA + Vers.A
Collaborating team at AgwA
Benoit Burquel, Harold Fallon, Hélène Joos, Nicky Vancaudenberg, Benoit Vandenbulcke
Ali Ismail, Tristan Leduc, Julian Zhang, Isabella Ruggia, Lucas Verhaeghe, Léo Duyck