2310_GRAY
renovation and extension of a primary school
- Location :
- Ixelles, Brussels
- Client :
- Commune of Ixelles
- Surface :
- 1155 m2
- Team :
- AgwA + KIOSK brussels
- Subcontractors :
- JZH&Partners - Enesta - Daidalos Peutz - Plant en Houtgoed
- Planning :
- 2023
- Category :
- Ongoing
"The undeveloped space becomes the new core of the block: the community garden mediates between the existing school and its new extension, the residential properties within the block, and the collective rooftop garden above the Colruyt. A natural, safe forecourt is formed for the school. This buffer zone between the street and community garden is the first sequence. Next comes the vegetable garden. The community garden forms a green oasis in the heart of a dense fabric in lower Elsene. The third sequence will be a semi-green play area.
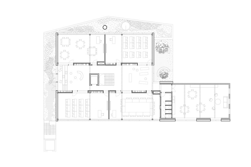
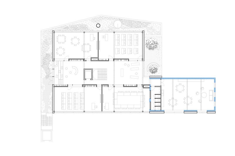
The project aims to reconcile the program with the context by precisely positioning thoughtfully designed volumes: one part is preserved, the other replaced. A precise assessment of the existing building structures shows that the current multipurpose spaces can accommodate other functions without major interventions. The existing workshops are not very flexible and offer low load-bearing capacity. It is more efficient to replace this building and aim to reuse as much construction materials as possible. The new openings in the side facade create a beautiful backdrop for the community garden. Our proposal adds a new rear facade: it makes the figure of a collective playground even more readable. Simple interventions in the landscape provide definition, readability, and controllability.
All publicly accessible functions are organized on the ground floor: the gymnasium, cafeteria, and toy library can be accessed independently. These functions activate the inner area at any hour of the day and on any day of the week. The classrooms are located above, in a flexible volume with a wooden load-bearing structure. A geometric design determines the different atmospheres in the compact outdoor spaces of the school.
The playground can also be used by the neighborhood outside of school hours. A planted hill with a slide and play elements made of reused masonry serves as a play island. The existing canopy becomes a greenhouse for multifunctional use. The prefab concrete strips in the current garden will be reused to pave the outdoor classroom. This outdoor classroom also forms a slope to make the existing building fully accessible. Covered play areas will be created by building simple wooden canopies. Under these canopies, play equipment and nets can be hung for optimal play experiences. A patio brings light and air into the cafeteria and creates distance from the neighbor. A combination of low, shade-loving plants and tall trees ensures an optimal green perspective without taking away too much sunlight.
The more intimate spaces are located on the first floor: the classrooms are connected via a multipurpose space between them. This multipurpose space opens generously onto a rooftop garden with a view of the vegetable garden on the Colruyt. The walls of the classrooms on the first floor are made of a light structure, which can be adapted according to future needs and requests. How can the multipurpose spaces be used optimally? On the first floor, they serve as circulation to the classrooms and the library. The space can be used multifunctionally for learning, reading, or playing."
Extracts from the competition proposal, 20.10.23, AgwA + kiosk.brussels
Collaborating team at AgwA
Benoit Burquel, Harold Fallon, Hélène Joos, Nicky Vancaudenberg, Benoit Vandenbulcke
Juliette Lucarain, Isabella Ruggia, Léo Duyck
The project aims to reconcile the program with the context by precisely positioning thoughtfully designed volumes: one part is preserved, the other replaced. A precise assessment of the existing building structures shows that the current multipurpose spaces can accommodate other functions without major interventions. The existing workshops are not very flexible and offer low load-bearing capacity. It is more efficient to replace this building and aim to reuse as much construction materials as possible. The new openings in the side facade create a beautiful backdrop for the community garden. Our proposal adds a new rear facade: it makes the figure of a collective playground even more readable. Simple interventions in the landscape provide definition, readability, and controllability.
All publicly accessible functions are organized on the ground floor: the gymnasium, cafeteria, and toy library can be accessed independently. These functions activate the inner area at any hour of the day and on any day of the week. The classrooms are located above, in a flexible volume with a wooden load-bearing structure. A geometric design determines the different atmospheres in the compact outdoor spaces of the school.
The playground can also be used by the neighborhood outside of school hours. A planted hill with a slide and play elements made of reused masonry serves as a play island. The existing canopy becomes a greenhouse for multifunctional use. The prefab concrete strips in the current garden will be reused to pave the outdoor classroom. This outdoor classroom also forms a slope to make the existing building fully accessible. Covered play areas will be created by building simple wooden canopies. Under these canopies, play equipment and nets can be hung for optimal play experiences. A patio brings light and air into the cafeteria and creates distance from the neighbor. A combination of low, shade-loving plants and tall trees ensures an optimal green perspective without taking away too much sunlight.
The more intimate spaces are located on the first floor: the classrooms are connected via a multipurpose space between them. This multipurpose space opens generously onto a rooftop garden with a view of the vegetable garden on the Colruyt. The walls of the classrooms on the first floor are made of a light structure, which can be adapted according to future needs and requests. How can the multipurpose spaces be used optimally? On the first floor, they serve as circulation to the classrooms and the library. The space can be used multifunctionally for learning, reading, or playing."
Extracts from the competition proposal, 20.10.23, AgwA + kiosk.brussels
Collaborating team at AgwA
Benoit Burquel, Harold Fallon, Hélène Joos, Nicky Vancaudenberg, Benoit Vandenbulcke
Juliette Lucarain, Isabella Ruggia, Léo Duyck